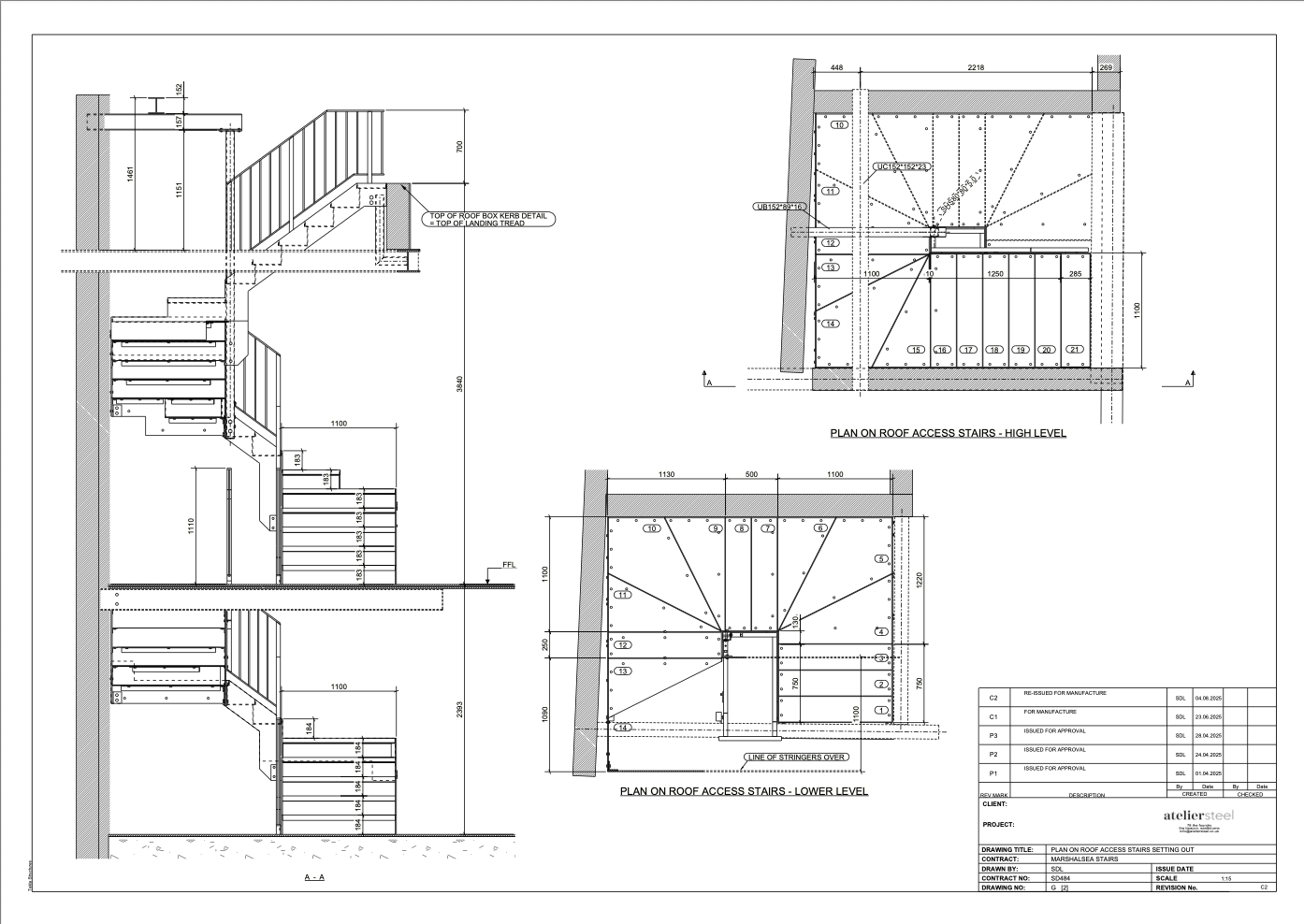
2 Storey Staircase, London Bridge

We were appointed to design, fabricate and install a two-storey structural staircase forming part of an extension to an existing development near London Bridge. Delivered as a £32k supply and install package, the works required close coordination with the client and project engineer throughout.

The brief was to provide a compliant new staircase that integrated seamlessly with an existing five-storey stair core. Multiple site visits were undertaken to resolve dimensional constraints and achieve finished levels that aligned precisely with the retained structure. Particular attention was given to compliance with Approved Document Part K of the Building Regulations, ensuring rise, going and headroom requirements were satisfied without compromising the architectural intent.

The existing stair core was not square, requiring tight fabrication tolerances and careful detailing to ensure accurate landings and structural alignment. Due to restricted access, materials were distributed by hand to the fifth floor prior to installation.

Through structured surveying, iterative detailing and controlled fabrication, the staircase was installed accurately within the constrained environment, achieving both regulatory compliance and visual continuity with the existing building.

Previous
Previous

Refurb Project, Lewes

Next
Next

32 units - Modular Housing Package, St. Leonards